923 Spain Street, New Orleans, LA 70117
Toggle Navigation
Images
Videos
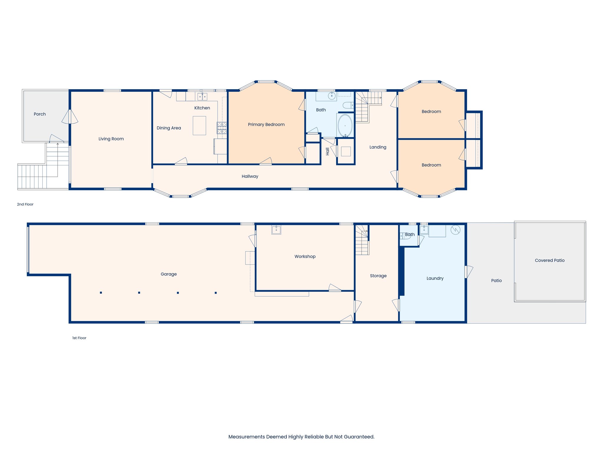
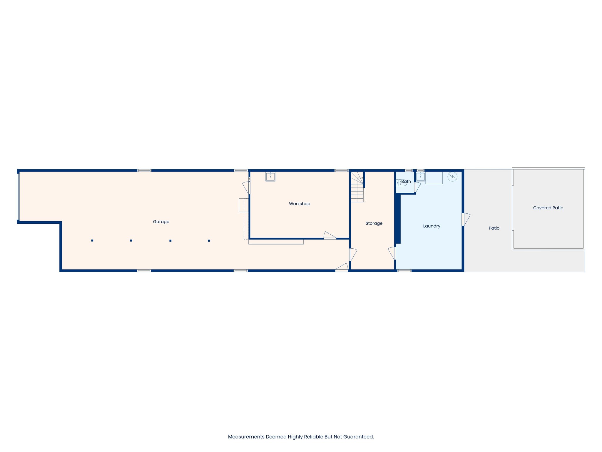
Floor Plans
3D Tour
Map
923 Spain Street
New Orleans, LA 70117
Scroll to Content
Images
Slideshow
Photo Grid
Hide
Previous
Next
Show more
Videos
Floor Plans
Slideshow
Photo Grid
Hide
Previous
Next
3D Tour