17 Fox Hollow Dr, Windsor Locks, CT 06096
Toggle Navigation
Images
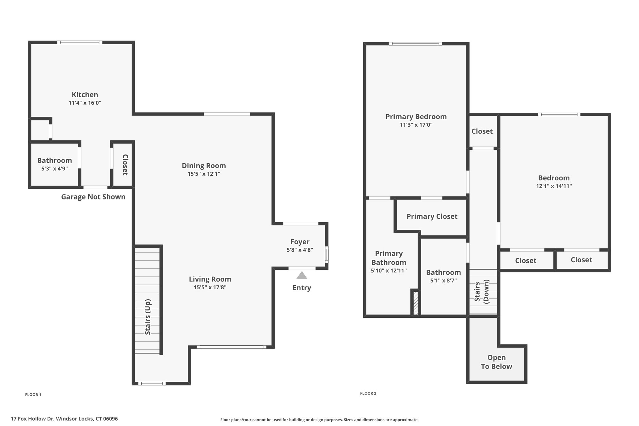
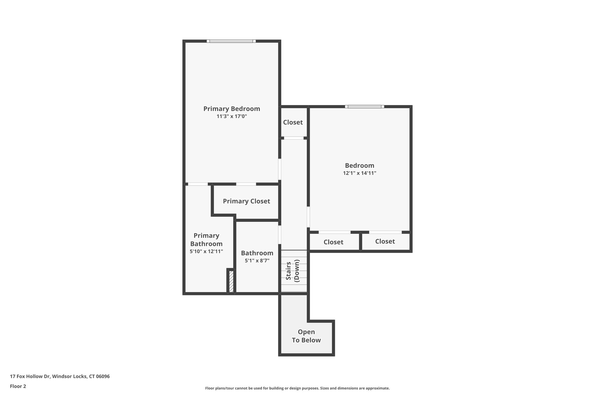
Floor Plans
3D Tour
Map
17 Fox Hollow Dr
Windsor Locks, CT 06096
Scroll to Content
Images
Slideshow
Photo Grid
Hide
Previous
Next
Show more
Floor Plans
Slideshow
Photo Grid
Hide
Previous
Next
3D Tour